ATS Floral Pathways
NH 24 GhaziabadExplore the allure of ATS Homekraft Floral Pathways, an upcoming residential haven nestled along NH 24 Highway in Ghaziabad. Immerse yourself in the prospect of owning a home within this under-construction housing society, where a range of apartments awaits discerning buyers. Crafted by ATS HomeKraft, this development is poised to deliver a harmonious blend of modern living and essential conveniences.
With a commitment to meeting the diverse needs of homebuyers, ATS Homekraft Floral Pathways is designed to offer a comprehensive array of facilities and amenities. The society is meticulously planned to cater to the requirements of residents, ensuring a comfortable and fulfilling lifestyle.
Anticipated for possession in March 2027, ATS Homekraft Floral Pathways aims to provide a seamless living experience. As a RERA-registered society, the project adheres to regulatory standards, and key details are readily accessible on the state RERA portal. The RERA registration number for this project is UPRERAPRJ750395, instilling confidence in prospective buyers regarding the transparency and legitimacy of the venture.
Embark on a journey towards a future home at ATS Homekraft Floral Pathways, where the promise of quality living meets the tranquility of NH 24 Highway.
Quick Summary
- Property Name: Ats Floral Pathways
- Location: NH 24 Ghaziabad
- Property Type: Residential
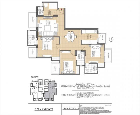
- Beds: 3BHK
- Area: 1720 SQFT
- Possession: March 2027
- Rera No: RERA NO UPRERAPRJ750395
Price
| TYPE | AREA | STARTING PRICE* | MORE DETAILS |
| 3BHK | 1720 SQFT | 96.5 Lakh* | Get Details |
Amenities
-
Jogging Track
-
Kids Play Area
-
Multi Purpose Lown
-
Open Gym





















